Aller à :

  • Aller à la recherche
  • Aller au menu principal
  • Aller au contenu
0
  • MAISONS
  • APPARTEMENTS
  • TERRAINS
  • PROGRAMMES NEUFS
  • LOCATIONS
  • COMMERCES
  • ESTIMER / VENDRE
    • Estimer
    • Biens vendus
    • Biens vendus neufs
    • Biens loués
    • Biens professionnels vendus
    • Terrains vendus
0
phone+33 (0)6 19 56 83 49 contactNous contacter contactinfo@matesaimmo.com
  1. Agence immobilière à Ferney-Voltaire, Divonne-les-Bains
  2. Vente
  3. Ornex
  4. Appartement
  5. T3
  6. Ornex t3 70m avec terrasse et jardin privatif parking en sous sol et cave
Vendu
Réf : V10000233
Appartement
ORNEX, T3 70m² AVEC TERRASSE ET JARDIN PRIVATIF, PARKING EN SOUS SOL ET CAVE
Nombre de pièces 3
Nombre de chambres 2
Nombre de salles de bain 1

ORNEX, T3 70m² AVEC TERRASSE ET JARDIN PRIVATIF, PARKING EN SOUS SOL ET CAVE Ornex (01210)

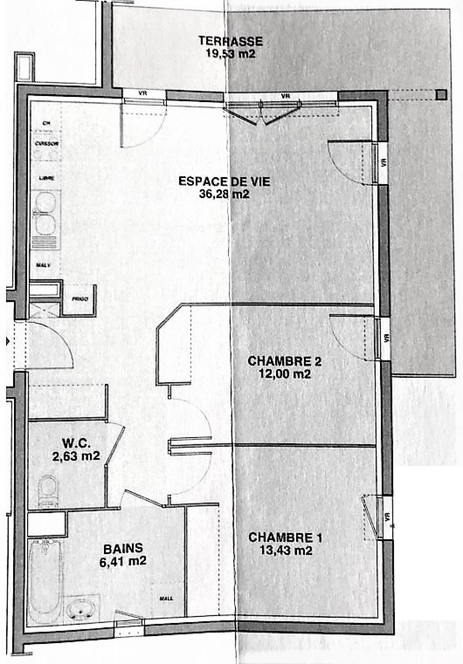
ORNEX 01210, dans petite résidence de standing de 2015, au fond d'une impasse, très agréable appartement type T3 traversant de 70m² avec une grande terrasse et un vaste jardin privatif de 160m² exposé sud et ouest clos et arboré, appartement en parfait état et disposé comme suit: une entrée avec placard, espace cuisine entièrement équipée ouverte sur séjour salle avec accès extérieur, un dégagement, un wc séparé avec lave main, deux chambres, une grande salle de bain avec fenêtre. En annexe : une place en sous-sol et une cave. Appartement très lumineux, au calme et à deux pas des commerces et du BUS F. A VISITER RAPIDEMENT.

MATESA IMMO, agence immobilière spécialisée Pays de Gex, vente et achat appartement Ornex 01210.

  • Général
  • Détails +
  • Copropriété
  • DPE
  • Quartier
Caractérisque Valeurs
Code postal 01210
Surface habitable (m²) 70 m²
Nombre de chambre(s) 2
Nombre de pièces 3
Ascenseur OUI
Vue Jura
Caractérisque Valeurs
Nb de salle de bains 1
Cuisine Américaine
Type de cuisine Equipée
Mode de chauffage Gaz de ville
Type de chauffage Radiateur
Format de chauffage Individuel
Balcon NON
Terrasse OUI
Nombre de garage 1
Cave OUI
Exposition Sud-Ouest
Année de construction 2015
Caractérisque Valeurs
Copropriété OUI
Quote Part annuelle des charges 1 620 €
DPE GES
Partager le bien
Nos outils
Imprimer Imprimer
Calculatrice financière

* Champ obligatoire

Partager l'annonce

* champs obligatoires

Les informations recueillies sur ce formulaire sont enregistrées dans un fichier informatisé par La Boite Immo agissant comme Sous-traitant du traitement pour la gestion de la clientèle/prospects de l'Agence / du Réseau qui reste Responsable du Traitement de vos Données personnelles. La base légale du traitement repose sur l'intérêt légitime de l'Agence / du Réseau. Elles sont conservées jusqu'à demande de suppression et sont destinées à l'Agence / au Réseau. Conformément à la loi « informatique et libertés », vous disposez des droits d’accès, de rectification, d’effacement, d’opposition, de limitation et de portabilité de vos données. Vous pouvez retirer votre consentement à tout moment en contactant directement l’Agence / Le Réseau. Consultez le site https://cnil.fr/fr pour plus d’informations sur vos droits. Si vous estimez, après avoir contacté l'Agence / le Réseau, que vos droits « Informatique et Libertés » ne sont pas respectés, vous pouvez adresser une réclamation à la CNIL. Nous vous informons de l’existence de la liste d'opposition au démarchage téléphonique « Bloctel », sur laquelle vous pouvez vous inscrire ici : https://www.bloctel.gouv.fr Dans le cadre de la protection des Données personnelles, nous vous invitons à ne pas inscrire de Données sensibles dans le champ de saisie libre.
Ce site est protégé par reCAPTCHA, les Politiques de Confidentialité et les Conditions d'Utilisation de Google s'appliquent.

Détail des diagnostics énergétiques
DPE GES
DPE ANCIENNE VERSION

Partager avec vos proches

Facebook Facebook
Messenger Messenger
Twitter Twitter
WhatsApp WhatsApp
LinkedIn LinkedIn
Copier le lien Copier le lien
Se connecter
Espace propriétaire
Page d'accueil
Adhérents

Avis clients

Agence courrin
Avis client

© 2026 | Tous droits réservés | Traduction powered by Google |

  • Nos honoraires
  • Plan du site
  • Mentions légales
  • Admin
  • Nos liens
  • Politique RGPD
  • LinkedIn
  • tiktok-svg

Comme beaucoup, notre site utilise les cookies

On aimerait vous accompagner pendant votre visite. En poursuivant, vous acceptez l'utilisation des cookies par ce site, afin de vous proposer des contenus adaptés et réaliser des statistiques !

Paramétrer

Cookies fonctionnelsCes cookies sont indispensables à la navigation sur le site, pour vous garantir un fonctionnement optimal. Ils ne peuvent donc pas être désactivés.

Statistiques de visitesPour améliorer votre expérience, on a besoin de savoir ce qui vous intéresse !
Les données récoltées sont anonymisées.

?

Google Analytics

En savoir plus

Faites estimer votre bien par un professionnel

Estimer votre bien