Aller à :

  • Aller à la recherche
  • Aller au menu principal
  • Aller au contenu
0
  • MAISONS
  • APPARTEMENTS
  • TERRAINS
  • PROGRAMMES NEUFS
  • LOCATIONS
  • COMMERCES
  • ESTIMER / VENDRE
    • Estimer
    • Biens vendus
    • Biens vendus neufs
    • Biens loués
    • Biens professionnels vendus
    • Terrains vendus
0
phone+33 (0)6 19 56 83 49 contactNous contacter contactinfo@matesaimmo.com
  1. Agence immobilière à Ferney-Voltaire, Divonne-les-Bains
  2. Vente
  3. Farges
  4. Maison
  5. T5
  6. Farges 01550 maison 4 chambres terrain garage
Réf : V10001612
Maison
FARGES 01550, MAISON 4 CHAMBRES / TERRAIN / GARAGE
Nombre de pièces 5
Nombre de chambres 4
Nombre de salles de bain 1
TRAD_MELTEM_Superficieterrainenm² 315 m²
Vidéo
Le bien en vidéo
SpotVideo
495 000 €

FARGES 01550, MAISON 4 CHAMBRES / TERRAIN / GARAGE Farges (01550)

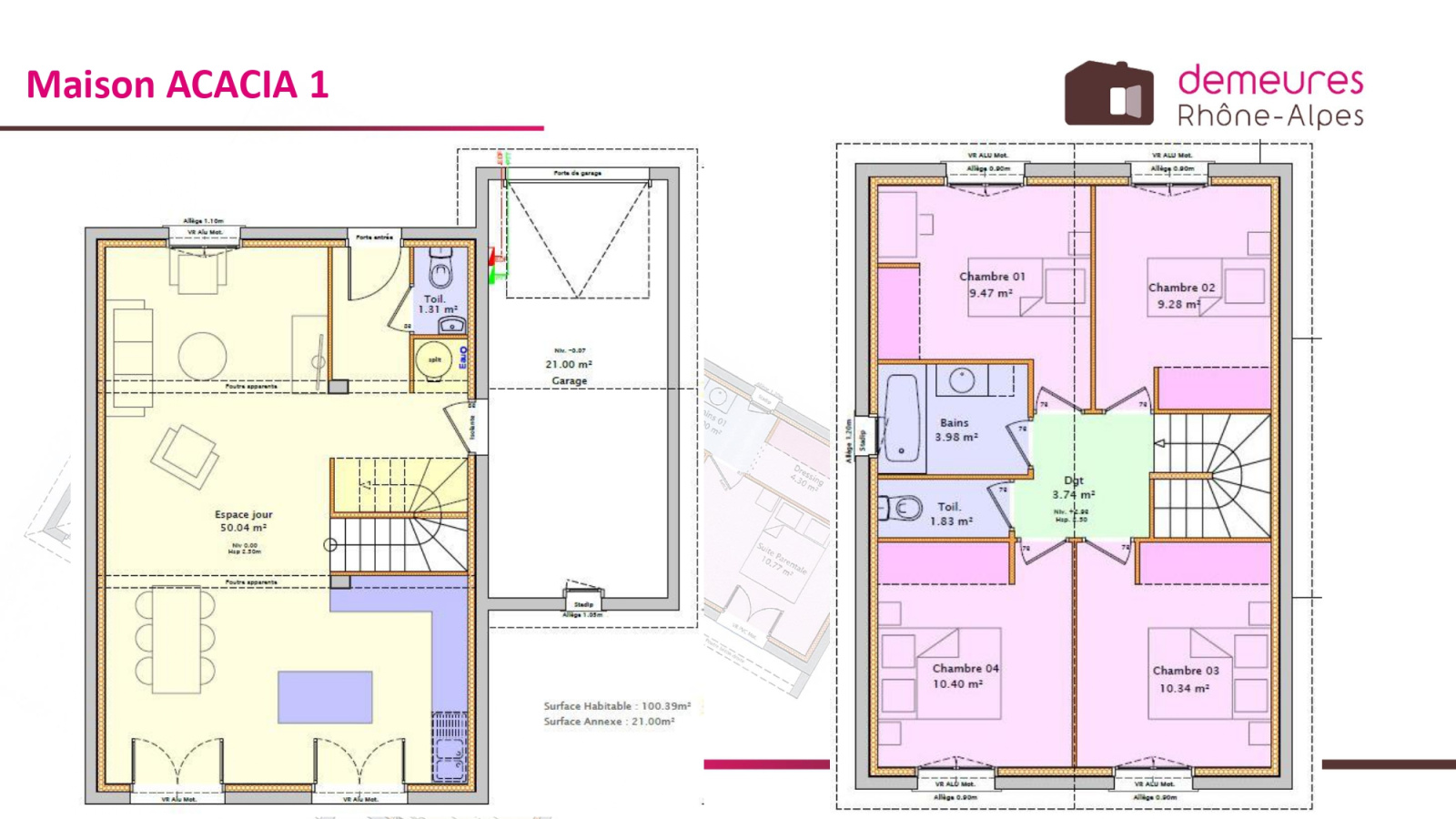
Matesa immobilier vous propose en exclusivité cette magnifique maison de 100m² sise dans un lotissement résidentiel sur la jolie commune de Farges 01550. La Maison bénéficiera d’un terrain privatif de plus de 300m2, composée d’un grand espace de vie de plus de 40 m2, de 4 chambres et 2 WC. En annexe : un garage et une place de parking extérieure. Chauffage pompe à chaleur, volets électriques, carrelage et faïences, vide sanitaire. Tout fini hors peinture, parquet chambres, et cuisine.

A découvrir sans tarder

Matesa Immobilier, votre agence immobilière du Pays de Gex qui vous accompagne depuis plus de 20 ans dans vos projets de vie. Vente maisons FARGES 01550

“Les informations sur les risques auxquels ce bien est exposé sont disponibles sur le site Géorisques http://www.georisques.gouv.fr”.

  • Général
  • Détails +
  • Copropriété
  • Financier
  • DPE
  • Quartier
Caractérisque Valeurs
Code postal 01550
Surface habitable (m²) 100 m²
surface terrain 315 m²
Nombre de chambre(s) 4
Nombre de pièces 5
Nombre de niveaux 2
Caractérisque Valeurs
Nb de salle de bains 1
Cuisine Américaine
Mode de chauffage Pompe à chaleur
Type de chauffage Radiateur
Format de chauffage Individuel
Murs mitoyens 1
Nombre de garage 1
Nombre de parking 1
Année de construction 2026
Caractérisque Valeurs
Copropriété NON
Caractérisque Valeurs
Prix de vente 495 000 €
Les honoraires d'agence seront intégralement à la charge du vendeur  
DPE GES
cette offre vous intéresse ?
Contacter l'agence
(0)6 19 56 83 49

* champs obligatoires

Les informations recueillies sur ce formulaire sont enregistrées dans un fichier informatisé par La Boite Immo agissant comme Sous-traitant du traitement pour la gestion de la clientèle/prospects de l'Agence / du Réseau qui reste Responsable du Traitement de vos Données personnelles. La base légale du traitement repose sur l'intérêt légitime de l'Agence / du Réseau. Elles sont conservées jusqu'à demande de suppression et sont destinées à l'Agence / au Réseau. Conformément à la loi « informatique et libertés », vous disposez des droits d’accès, de rectification, d’effacement, d’opposition, de limitation et de portabilité de vos données. Vous pouvez retirer votre consentement à tout moment en contactant directement l’Agence / Le Réseau. Consultez le site https://cnil.fr/fr pour plus d’informations sur vos droits. Si vous estimez, après avoir contacté l'Agence / le Réseau, que vos droits « Informatique et Libertés » ne sont pas respectés, vous pouvez adresser une réclamation à la CNIL. Nous vous informons de l’existence de la liste d'opposition au démarchage téléphonique « Bloctel », sur laquelle vous pouvez vous inscrire ici : https://www.bloctel.gouv.fr Dans le cadre de la protection des Données personnelles, nous vous invitons à ne pas inscrire de Données sensibles dans le champ de saisie libre.
Ce site est protégé par reCAPTCHA, les Politiques de Confidentialité et les Conditions d'Utilisation de Google s'appliquent.

Partager le bien
Nos outils
Imprimer Imprimer
Calculatrice financière

* Champ obligatoire

Partager l'annonce

* champs obligatoires

Les informations recueillies sur ce formulaire sont enregistrées dans un fichier informatisé par La Boite Immo agissant comme Sous-traitant du traitement pour la gestion de la clientèle/prospects de l'Agence / du Réseau qui reste Responsable du Traitement de vos Données personnelles. La base légale du traitement repose sur l'intérêt légitime de l'Agence / du Réseau. Elles sont conservées jusqu'à demande de suppression et sont destinées à l'Agence / au Réseau. Conformément à la loi « informatique et libertés », vous disposez des droits d’accès, de rectification, d’effacement, d’opposition, de limitation et de portabilité de vos données. Vous pouvez retirer votre consentement à tout moment en contactant directement l’Agence / Le Réseau. Consultez le site https://cnil.fr/fr pour plus d’informations sur vos droits. Si vous estimez, après avoir contacté l'Agence / le Réseau, que vos droits « Informatique et Libertés » ne sont pas respectés, vous pouvez adresser une réclamation à la CNIL. Nous vous informons de l’existence de la liste d'opposition au démarchage téléphonique « Bloctel », sur laquelle vous pouvez vous inscrire ici : https://www.bloctel.gouv.fr Dans le cadre de la protection des Données personnelles, nous vous invitons à ne pas inscrire de Données sensibles dans le champ de saisie libre.
Ce site est protégé par reCAPTCHA, les Politiques de Confidentialité et les Conditions d'Utilisation de Google s'appliquent.

Détail des diagnostics énergétiques
DPE GES

Montant estimé des dépenses annuelles d'énergie pour un usage standard est compris entre 750 € et 1 050 € . Prix moyens des énergies indexés sur les années 2021, 2022 et 2023 (abonnements compris).

Partager avec vos proches

Facebook Facebook
Messenger Messenger
Twitter Twitter
WhatsApp WhatsApp
LinkedIn LinkedIn
Copier le lien Copier le lien
Autres biens

Ces biens peuvent aussi vous intéresser

Maison

SERGY 01630, maison de village 100m² avec terrain 177m² avec parkings

Sergy (01630)
Voir le bien
Appartement

FERNEY VOLTAIRE ; T5 (4 CHAMBRES). 2 SALLES D'EAU, BALCON, GARAGE

Ferney-Voltaire (01210)
Voir le bien
Se connecter
Espace propriétaire
Page d'accueil
Adhérents

Avis clients

Agence courrin
Avis client

© 2026 | Tous droits réservés | Traduction powered by Google |

  • Nos honoraires
  • Plan du site
  • Mentions légales
  • Admin
  • Nos liens
  • Politique RGPD
  • LinkedIn
  • tiktok-svg

Comme beaucoup, notre site utilise les cookies

On aimerait vous accompagner pendant votre visite. En poursuivant, vous acceptez l'utilisation des cookies par ce site, afin de vous proposer des contenus adaptés et réaliser des statistiques !

Paramétrer

Cookies fonctionnelsCes cookies sont indispensables à la navigation sur le site, pour vous garantir un fonctionnement optimal. Ils ne peuvent donc pas être désactivés.

Statistiques de visitesPour améliorer votre expérience, on a besoin de savoir ce qui vous intéresse !
Les données récoltées sont anonymisées.

?

Google Analytics

En savoir plus

Faites estimer votre bien par un professionnel

Estimer votre bien