Aller à :

  • Aller à la recherche
  • Aller au menu principal
  • Aller au contenu
0
  • MAISONS
  • APPARTEMENTS
  • TERRAINS
  • PROGRAMMES NEUFS
  • LOCATIONS
  • COMMERCES
  • ESTIMER / VENDRE
    • Estimer
    • Biens vendus
    • Biens vendus neufs
    • Biens loués
    • Biens professionnels vendus
    • Terrains vendus
0
phone+33 (0)6 19 56 83 49 contactNous contacter contactinfo@matesaimmo.com
  1. Agence immobilière à Ferney-Voltaire, Divonne-les-Bains
  2. Vente neuf
  3. Chevry
  4. Maison
  5. T5
Réf : O10000180
Maison
MAISON INDIVIDUELLE NEUVE A CHEVRY 01170
Nombre de pièces 5
Nombre de chambres 4
Nombre de salles de bain 1
Salle d'eau 1
Livraison

2ème trimestre 2023

MAISON INDIVIDUELLE NEUVE A CHEVRY 01170 Chevry (01170)

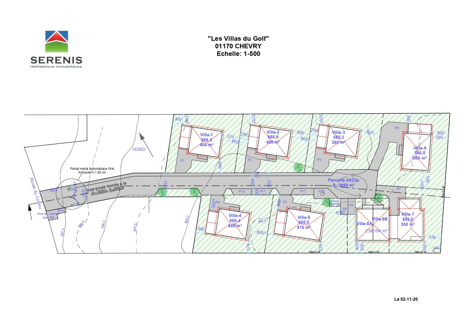
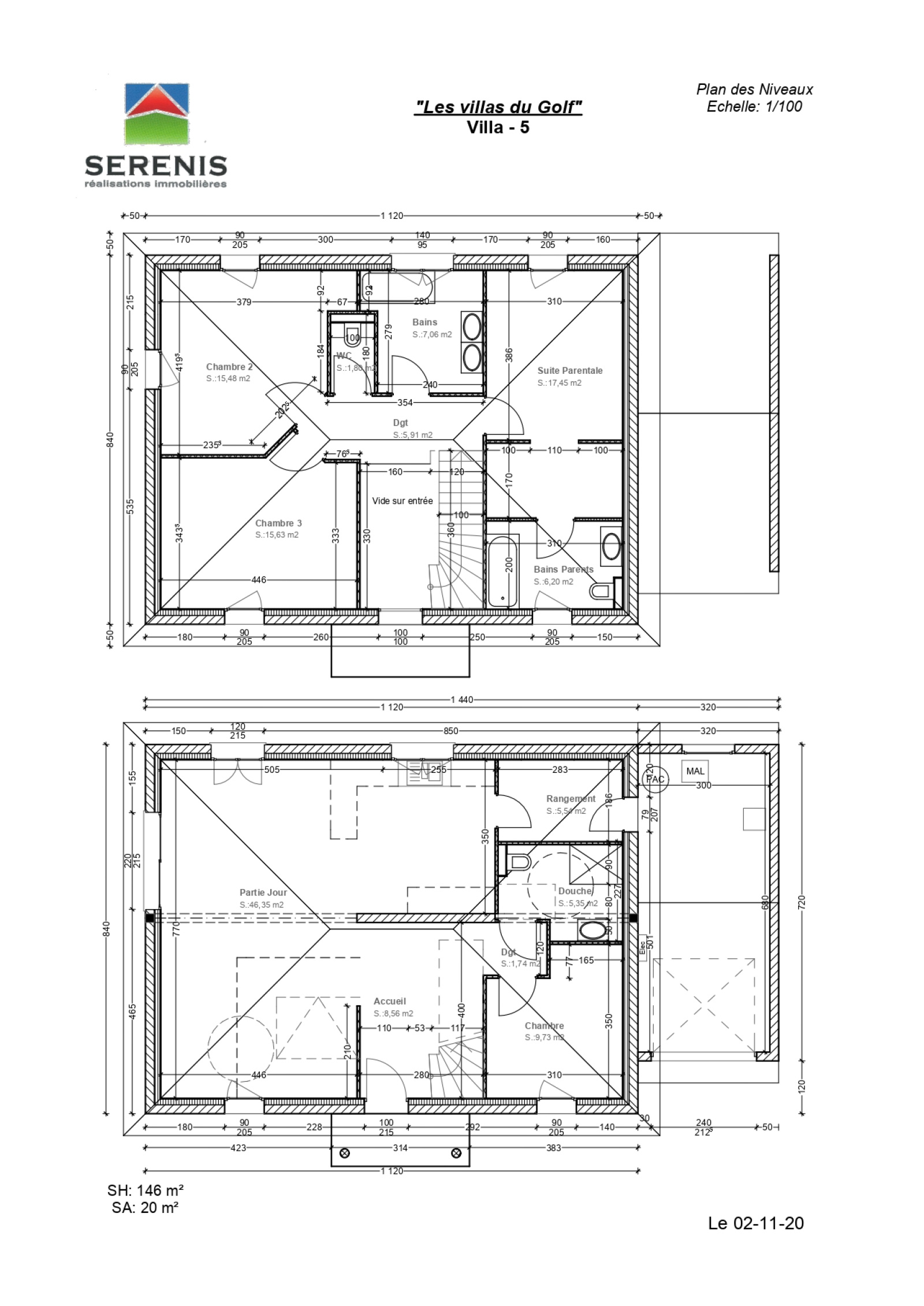
MAISON INDIVIDUELLE 126m² à CHEVRY 01170, Sur ce beau terrain de 400 m², Nous proposons une magnifique maison moderne optimisée de 126 m² sur 2 niveaux, comprenant au RDC : une entrée, une belle pièce à vivre lumineuse avec une cuisine ouverte, un cellier-buanderie, une chambre, une salle de douche à l'italienne avec wc. A l'ETAGE : dégagement avec vide sur séjour, 3 chambres dont une grande suite parentale avec dressing et salle de douche avec wc privative, une autre salle de bain, un wc séparé. En annexe : un grand garage fermé, parkings extérieurs. Dans un quartier calme de Chevry, à deux pas du golf de la maison Blanche d'Echenevex, l'environnement est très agréable pour un cadre de vie en famille, très belle vue dégagée sur le Jura. A 5 minutes en voiture du centre de Chevry et de toutes les commodités. Des prestations de qualités et de standing (les salles de bains entièrement équipées, les abords goudronnés, etc) Villas conformes à la RT2012 avec chauffage pompe à chaleur, idéal pour un projet familial. Frais de notaires réduits. Promoteur local et réputé, bénéficiant de toutes les garanties décennales et dommage-ouvrage. N'hésitez pas à nous contacter pour tout complément d'information (visite, dossier, etc) DOSSIER RENSEIGNEMENTS VISITES SUR DEMANDE MATESA IMMOBILIER, agence spécialiste immobilière Pays de Gex, Vente Villa Maison neuve CHEVRY 01170

  • Général
  • Détails +
  • Copropriété
  • DPE
  • Quartier
Caractérisque Valeurs
Code postal 01170
Surface habitable (m²) 126 m²
Nombre de chambre(s) 4
Nombre de pièces 5
Nombre de niveaux 2
Caractérisque Valeurs
Nb de salle de bains 1
Nb de salle d'eau 1
Cuisine Sans
Mode de chauffage Pompe à chaleur
Type de chauffage Autre
Format de chauffage Individuel
Nombre de garage 1
Année de construction 2022
Caractérisque Valeurs
Copropriété NON
plan de sauvegarde NON
statut du syndic pas de procédure en cours
DPE GES
Partager le bien
Nos outils
Imprimer Imprimer
Calculatrice financière

* Champ obligatoire

Partager l'annonce

* champs obligatoires

Les informations recueillies sur ce formulaire sont enregistrées dans un fichier informatisé par La Boite Immo agissant comme Sous-traitant du traitement pour la gestion de la clientèle/prospects de l'Agence / du Réseau qui reste Responsable du Traitement de vos Données personnelles. La base légale du traitement repose sur l'intérêt légitime de l'Agence / du Réseau. Elles sont conservées jusqu'à demande de suppression et sont destinées à l'Agence / au Réseau. Conformément à la loi « informatique et libertés », vous disposez des droits d’accès, de rectification, d’effacement, d’opposition, de limitation et de portabilité de vos données. Vous pouvez retirer votre consentement à tout moment en contactant directement l’Agence / Le Réseau. Consultez le site https://cnil.fr/fr pour plus d’informations sur vos droits. Si vous estimez, après avoir contacté l'Agence / le Réseau, que vos droits « Informatique et Libertés » ne sont pas respectés, vous pouvez adresser une réclamation à la CNIL. Nous vous informons de l’existence de la liste d'opposition au démarchage téléphonique « Bloctel », sur laquelle vous pouvez vous inscrire ici : https://www.bloctel.gouv.fr Dans le cadre de la protection des Données personnelles, nous vous invitons à ne pas inscrire de Données sensibles dans le champ de saisie libre.
Ce site est protégé par reCAPTCHA, les Politiques de Confidentialité et les Conditions d'Utilisation de Google s'appliquent.

Détail des diagnostics énergétiques
DPE GES
DPE vierge

Partager avec vos proches

Facebook Facebook
Messenger Messenger
Twitter Twitter
WhatsApp WhatsApp
LinkedIn LinkedIn
Copier le lien Copier le lien
Se connecter
Espace propriétaire
Page d'accueil
Adhérents

Avis clients

Agence courrin
Avis client

© 2026 | Tous droits réservés | Traduction powered by Google |

  • Nos honoraires
  • Plan du site
  • Mentions légales
  • Admin
  • Nos liens
  • Politique RGPD
  • LinkedIn
  • tiktok-svg

Comme beaucoup, notre site utilise les cookies

On aimerait vous accompagner pendant votre visite. En poursuivant, vous acceptez l'utilisation des cookies par ce site, afin de vous proposer des contenus adaptés et réaliser des statistiques !

Paramétrer

Cookies fonctionnelsCes cookies sont indispensables à la navigation sur le site, pour vous garantir un fonctionnement optimal. Ils ne peuvent donc pas être désactivés.

Statistiques de visitesPour améliorer votre expérience, on a besoin de savoir ce qui vous intéresse !
Les données récoltées sont anonymisées.

?

Google Analytics

En savoir plus

Faites estimer votre bien par un professionnel

Estimer votre bien