Aller à :

  • Aller à la recherche
  • Aller au menu principal
  • Aller au contenu
0
  • MAISONS
  • APPARTEMENTS
  • TERRAINS
  • PROGRAMMES NEUFS
  • LOCATIONS
  • COMMERCES
  • ESTIMER / VENDRE
    • Estimer
    • Biens vendus
    • Biens vendus neufs
    • Biens loués
    • Biens professionnels vendus
    • Terrains vendus
0
phone+33 (0)6 19 56 83 49 contactNous contacter contactinfo@matesaimmo.com
  1. Agence immobilière à Ferney-Voltaire, Divonne-les-Bains
  2. Vente
  3. Vetraz monthoux
  4. Terrain
Vendu
Réf : V10000114
Terrain
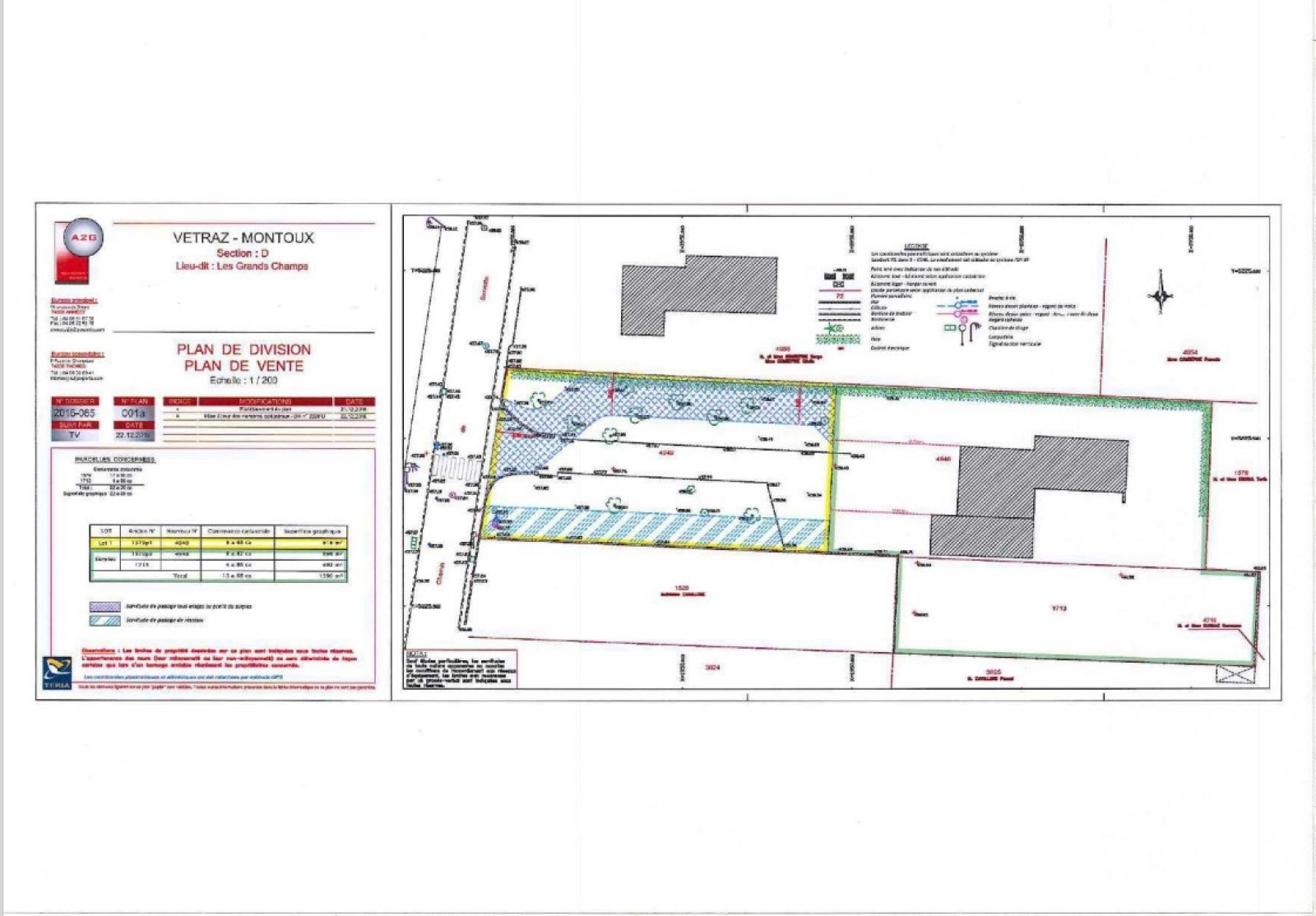
Situé à VETRAZ-MONTHOUX 74100, terrain constructible de 818m², libre constructeur.
TRAD_MELTEM_Superficieterrainenm² 818 m²

Situé à VETRAZ-MONTHOUX 74100, terrain constructible de 818m², libre constructeur. Vétraz-Monthoux (74100)

EXCLUSIVITE ! Situé à VETRAZ-MONTHOUX - Chemin de Servette - 74100, terrain constructible de 818m² incluant une serviture de passage, libre constructeur. UNIQUEMENT POUR UNE SEULE VILLA INDIVIDUELLEU ! CES de 25%.Terrain plat, MATESA IMMO, achat vente terrain Vétraz-Monthoux 741

  • Général
  • Détails +
  • Copropriété
  • Quartier
Caractérisque Valeurs
Code postal 74100
surface terrain 818 m²
Terrain constructible OUI
Caractérisque Valeurs
Raccordement eau OUI
Raccordement électricité OUI
Raccordement téléphone OUI
Caractérisque Valeurs
Copropriété NON
Partager le bien
Nos outils
Imprimer Imprimer
Calculatrice financière

* Champ obligatoire

Partager l'annonce

* champs obligatoires

Les informations recueillies sur ce formulaire sont enregistrées dans un fichier informatisé par La Boite Immo agissant comme Sous-traitant du traitement pour la gestion de la clientèle/prospects de l'Agence / du Réseau qui reste Responsable du Traitement de vos Données personnelles. La base légale du traitement repose sur l'intérêt légitime de l'Agence / du Réseau. Elles sont conservées jusqu'à demande de suppression et sont destinées à l'Agence / au Réseau. Conformément à la loi « informatique et libertés », vous disposez des droits d’accès, de rectification, d’effacement, d’opposition, de limitation et de portabilité de vos données. Vous pouvez retirer votre consentement à tout moment en contactant directement l’Agence / Le Réseau. Consultez le site https://cnil.fr/fr pour plus d’informations sur vos droits. Si vous estimez, après avoir contacté l'Agence / le Réseau, que vos droits « Informatique et Libertés » ne sont pas respectés, vous pouvez adresser une réclamation à la CNIL. Nous vous informons de l’existence de la liste d'opposition au démarchage téléphonique « Bloctel », sur laquelle vous pouvez vous inscrire ici : https://www.bloctel.gouv.fr Dans le cadre de la protection des Données personnelles, nous vous invitons à ne pas inscrire de Données sensibles dans le champ de saisie libre.
Ce site est protégé par reCAPTCHA, les Politiques de Confidentialité et les Conditions d'Utilisation de Google s'appliquent.

Détail des diagnostics énergétiques
DPE GES
DPE ANCIENNE VERSION

Partager avec vos proches

Facebook Facebook
Messenger Messenger
Twitter Twitter
WhatsApp WhatsApp
LinkedIn LinkedIn
Copier le lien Copier le lien
Se connecter
Espace propriétaire
Page d'accueil
Adhérents

Avis clients

Agence courrin
Avis client

© 2026 | Tous droits réservés | Traduction powered by Google |

  • Nos honoraires
  • Plan du site
  • Mentions légales
  • Admin
  • Nos liens
  • Politique RGPD
  • LinkedIn
  • tiktok-svg

Comme beaucoup, notre site utilise les cookies

On aimerait vous accompagner pendant votre visite. En poursuivant, vous acceptez l'utilisation des cookies par ce site, afin de vous proposer des contenus adaptés et réaliser des statistiques !

Paramétrer

Cookies fonctionnelsCes cookies sont indispensables à la navigation sur le site, pour vous garantir un fonctionnement optimal. Ils ne peuvent donc pas être désactivés.

Statistiques de visitesPour améliorer votre expérience, on a besoin de savoir ce qui vous intéresse !
Les données récoltées sont anonymisées.

?

Google Analytics

En savoir plus

Faites estimer votre bien par un professionnel

Estimer votre bien